


























AUTO-CAD DRAFTING AND DESIGN FOR RESIDENTIAL AND LIGHT COMMERCIAL PROJECTS
RESIDENTIAL BUILDING DESIGN
This is a 4 bedroom maisonette, reinforced concrete, masonry and brick construction. Showing Construction documents and Construction Work Progress on Site.



























AUTO-CAD DRAFTING AND DESIGN FOR RESIDENTIAL AND LIGHT COMMERCIAL PROJECTS
RESIDENTIAL BUILDING DESIGN
This is a 5 bedroom maisonette, reinforced concrete, masonry structural construction. Showing Construction documents and Construction Work Progress on Site.


















SHOP DRAWINGS/ WORKING DRAWINGS
L-SHAPED STAIRCASE
This is an L-Shaped Steel Staircase, in a Restaurant on King Street, Alexandria, Virginia. Showing shop drawings, railing selections at the workshop, installation work on site and final look after restaurant remodel.
















SHOP DRAWINGS/ 3D GRAPHICS
COMPOSITE DECK PROJECT
This is a self supporting steel deck attachment to row house in Washington, DC. Showing shop drawings and 3D Rendering.






SHOP DRAWINGS/ ENGINEERING GRAPHICS
BRIDGE AND BOARDWALK
Civil Engineering graphics of small bridge shop drawings and a board walk assembly.







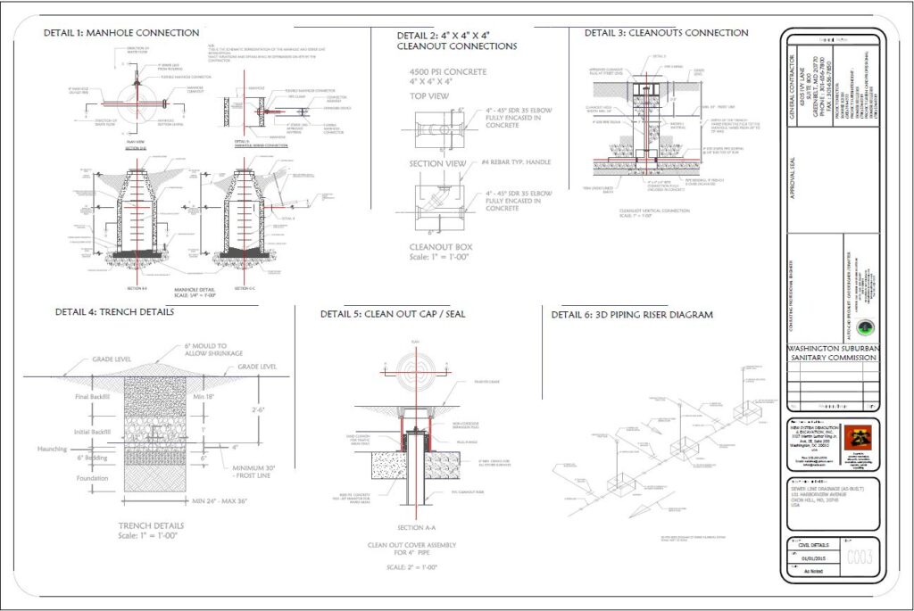
SOIL EROSION AND SEDIMENT CONTROL PLAN
CIVIL ENGINEERING GRAPHICS
Soil and Erosion Control Plan Single Survey line drawings of electrical wiring and Sanitary Waste Pipe Connections. Conduit Trenching and pipe laying diagrams, with various Stations and elevations.







SHOP DRAWINGS/ WORKING DRAWINGS
SPIRAL STAIRCASE
Spiral Staircase installed above Existing AC Unit to access balcony above.
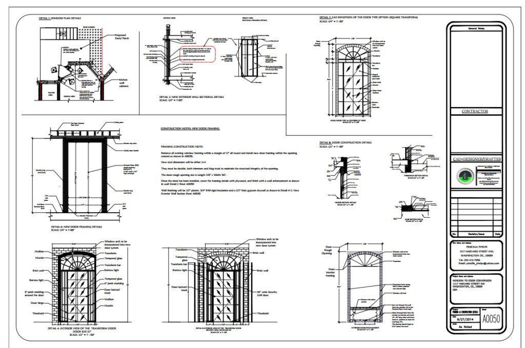
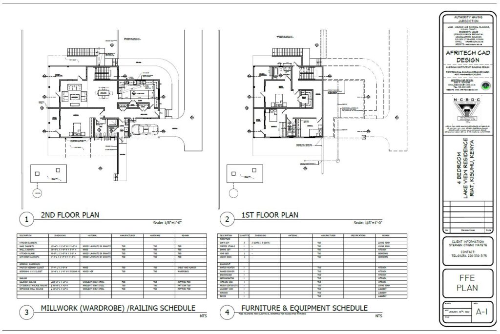
RESIDENTAIL CONSTRUCTION PLANS
- COMPLETE CONSTRUCTION DOCUMENTS SET
- TITLE PAGE
- SITE PLAN
- FLOOR PLANS
- ROOF PLAN
- REFLECTED CEILING PLAN
- FINISH PLAN
- INTERIOR ELEVATIONS
- EXTERIOR ELEVATIONS
- FINISH AND DOOR SCHEDULE
- SECTIONS / WALL SECTIONS
- CONSTRUCTION DETAILS
- PLUMBING DRAWINGS
- ELECTRICAL DRAWINGS
- EXTERIOR COLOR RENDERINGS
CIVIL DRAFTING
- SANITARY LINE UPGRADE
- SITE IMPROVEMENT PLANS

















